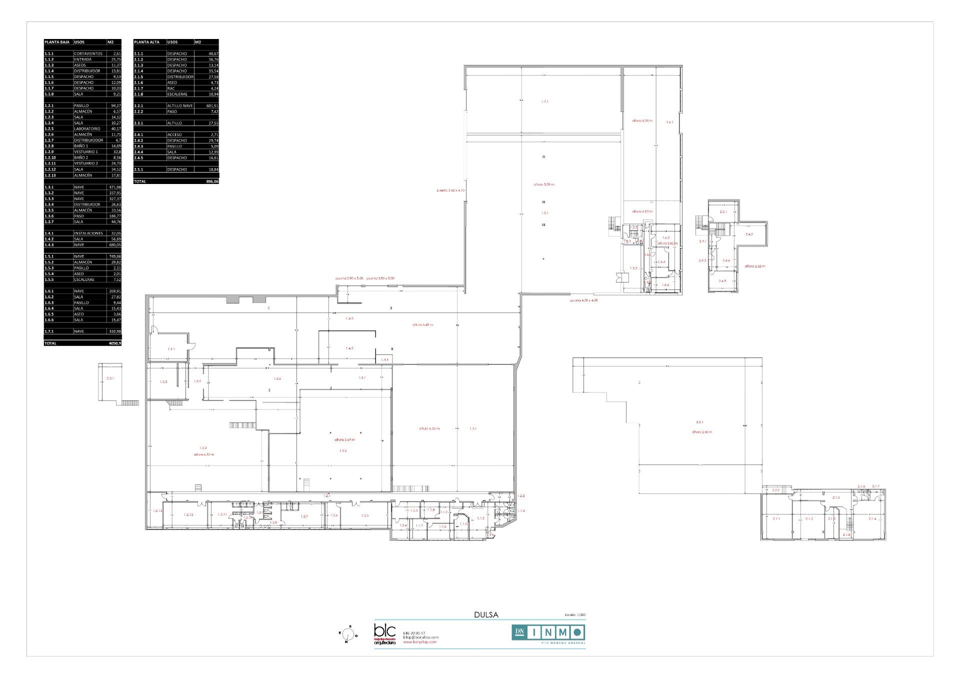
OPORTUNIDAD de complejo de Naves industriales con superficie total construida de 5.760 m2 ; zona de aparcamiento, muelle de carga, zonas de trabajo ,almacenes, planta de oficina,
Nave 1; nave en planta baja de 2579 m², oficinas en planta primera de 301 m², entreplanta de almacén de 591,80 m² y zona de pavimento y playa de 632 m².
Nave 2; Nave de planta baja de 1.472 m², oficina de 41 m² y almacén en planta primera de 140 m².
Buen estado de conservación, actividad alimentaria hasta 2022.
Ubicación excelente junto a parque de VOLSWAGEN, frente a DICONA SALTOKI.
TERRENO y UBICACIÓN ESTRATÉGICA para instalar un HIPERMERCADI o FRANQUICIA en el POLIGONO LANDABEN gran motor económico e industrial con más de 6.000 PERSONAS/TRABAJADORES/FAMILIAS circulando todos los días para ir asus puestos de trabajo.
Contacta con nosotros y nuestro AGENTE DNINMO PROFESIONAL te dará todos los detalles personalmente.
➡ INFORMACIÓN LEGAL
▪ Información meramente orientativa, sin valor contractual.
▪ Superficies aproximadas, con carácter descriptivo.
▪ Es posible que algunas imágenes hayan sido modificadas con IA o estén directamente generadas por IA.
▪ El precio de venta anunciado no incluye los gastos e impuestos a cargo del comprador derivados de la compraventa (Notaría, Registro, ITP, AJD, gastos financieros u otros). Tampoco se incluye el mobiliario ni otros enseres, salvo indicación expresa.
A modo orientativo en Navarra:
▪ Notaría y Registro: 1-2%.
▪ ITP: tipo general 6%.
▪ AJD: aprox. 0,5-1%.
PRECIO FINAL COMPLETO ESTIMADO incluyendo impuestos y gastos de compraventa: 2.484.000€.
Más información oficial:
▪ https:// navarra.es/home_es/Gobierno+de+Navarra/Organigrama/Los+departamentos/Economia+y+Hacienda/Organigrama/Estructura+Organica/Hacienda/Informacion+Fiscal/Normativa+Fiscal/Impuesto+sobre+Transmisiones+Patrimoniales+y+AJD/
|
Consumo de Energía kWh/m2 Año |
Emisiones CO₂ Kg CO₂/m2 Año |
|
|
100.39
|
21.18
|
|
Calle F 1, 31012 Pamplona, Navarra, España
Utilizamos cookies propias y de terceros para analizar el uso del sitio web y mostrarte publicidad relacionada con tus preferencias sobre la base de un perfil elaborado a partir de tus hábitos de navegación (por ejemplo, páginas visitadas). Política de cookies.