Extras
Trastero, Zonas infantiles, Colegios
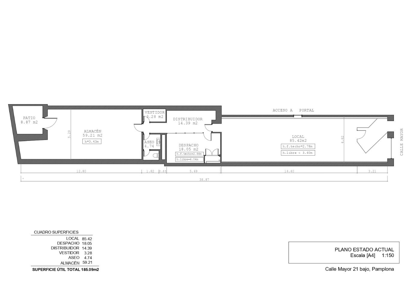
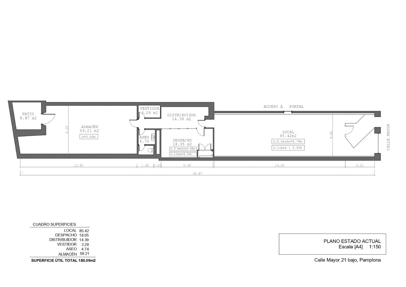
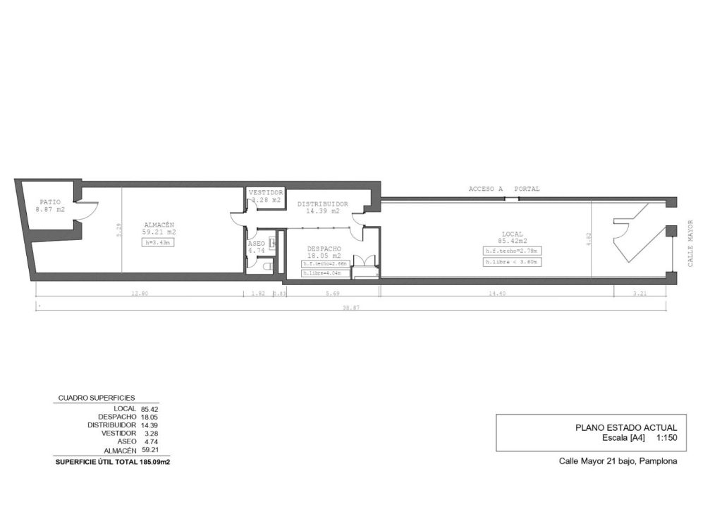
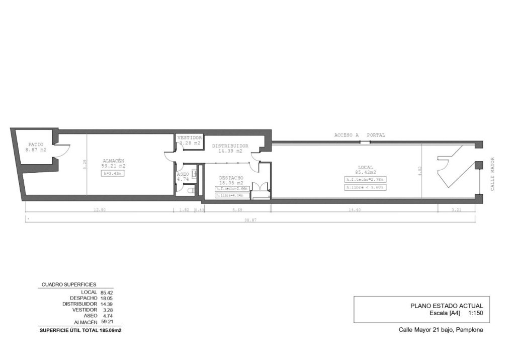
DNINMO presenta este LOCAL COMERCIAL con actividad junto a Condestable y Ayuntamiento en pleno centro del Casco Antiguo de Pamplona, en la calle Mayor eje de paso del Camino de Santiago donde puedas establecer tu negocio.
Negocio textil al detalle con actividad y clientela, zona de tienda al público con armarios, góndolas y vestidores de unos 125 metros y el resto oficinas, baños y almacén. Acceso por detrás a un pequeño patio interior de uso privativo. Listo para abrir desde el primer día, tu tienda de ropa en funcionamiento.
Contacta con nosotros y un agente DNINMO especializado te dará toda la información al detalle.
➡ INFORMACIÓN LEGAL
▪ Información meramente orientativa, sin valor contractual.
▪ Superficies aproximadas, con carácter descriptivo.
▪ Es posible que algunas imágenes hayan sido modificadas con IA o estén directamente generadas por IA.
▪ El precio de venta anunciado no incluye los gastos e impuestos a cargo del comprador derivados de la compraventa (Notaría, Registro, ITP, AJD, gastos financieros u otros). Tampoco se incluye el mobiliario ni otros enseres, salvo indicación expresa.
A modo orientativo en Navarra:
▪ Notaría y Registro: 1-2%.
▪ ITP: tipo general 6%.
▪ AJD: aprox. 0,5-1%.
PRECIO FINAL COMPLETO ESTIMADO incluyendo impuestos y gastos de compraventa: 318.600€.
Más información oficial:
▪ https:// navarra.es/home_es/Gobierno+de+Navarra/Organigrama/Los+departamentos/Economia+y+Hacienda/Organigrama/Estructura+Organica/Hacienda/Informacion+Fiscal/Normativa+Fiscal/Impuesto+sobre+Transmisiones+Patrimoniales+y+AJD/
Trastero, Zonas infantiles, Colegios
|
Consumo de Energía kWh/m2 Año |
Emisiones CO₂ Kg CO₂/m2 Año |
|
|
277.27
|
46.97
|
|
Calle Mayor 21, 31001 Pamplona, Navarra, España
Utilizamos cookies propias y de terceros para analizar el uso del sitio web y mostrarte publicidad relacionada con tus preferencias sobre la base de un perfil elaborado a partir de tus hábitos de navegación (por ejemplo, páginas visitadas). Política de cookies.