Extras
Despensa, Luz, Patio, Zonas infantiles, Colegios
Ubicación Estratégica:
Situada en una zona de alta demanda profesional, esta oficina es la solución ideal tanto para inversores que buscan rentabilidad por módulos, como para empresas que requieren un espacio organizado y eficiente.
La Propiedad: Autonomía y Eficiencia
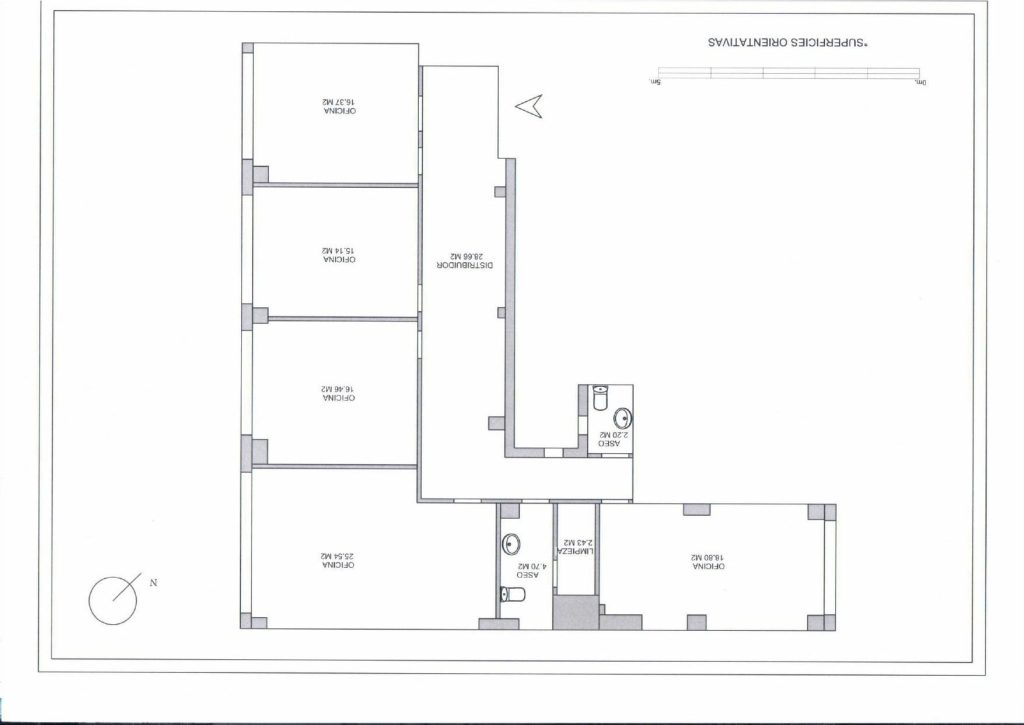
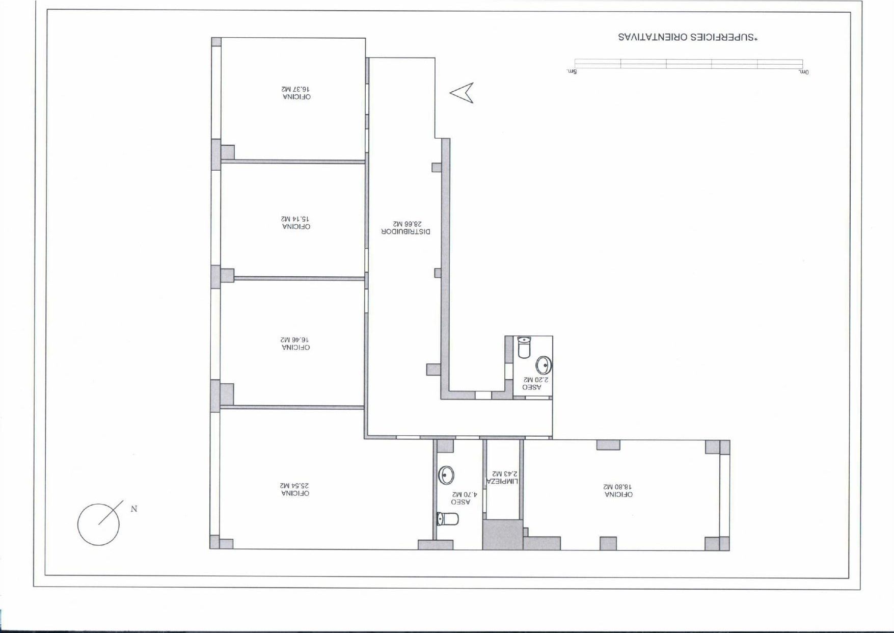
Lo que hace única a esta propiedad es su diseño orientado a la independencia funcional. El inmueble se distribuye en 5 amplios despachos exteriores, totalmente equipados y diseñados para operar de forma autónoma.
Gestión energética:
Cada despacho cuenta con su propio contador de luz individual, permitiendo un control exacto y justo del consumo por estancia.
Comunicación privada:
La oficina esta ubicada en una entreplanta sin ascensor y cada despacho dispone de su propio telefonillo independiente, permitiendo a cada profesional gestionar sus visitas y aperturas.
Servicios y Acabados:
La oficina ha sido configurada para ofrecer un entorno de trabajo profesional inmediato. La segmentación de los suministros facilita enormemente la gestión de gastos comunes y la privacidad, convirtiéndola en una pieza única en el mercado actual de oficinas y centros de negocios. Hay que resaltar que la oficina cuenta con dos aseos y una zona de almacén.
➡ INFORMACIÓN LEGAL
▪ Información meramente orientativa, sin valor contractual.
▪ Superficies aproximadas, con carácter descriptivo.
▪ Es posible que algunas imágenes hayan sido modificadas con IA o estén directamente generadas por IA.
▪ El precio de venta anunciado no incluye los gastos e impuestos a cargo del comprador derivados de la compraventa (Notaría, Registro, ITP, AJD, gastos financieros u otros). Tampoco se incluye el mobiliario ni otros enseres, salvo indicación expresa.
A modo orientativo en Navarra:
▪ Notaría y Registro: 1-2%.
▪ ITP: tipo general 6%.
▪ AJD: aprox. 0,5-1%.
PRECIO FINAL COMPLETO ESTIMADO incluyendo impuestos y gastos de compraventa: 302.400€.
Más información oficial:
▪ https:// navarra.es/home_es/Gobierno+de+Navarra/Organigrama/Los+departamentos/Economia+y+Hacienda/Organigrama/Estructura+Organica/Hacienda/Informacion+Fiscal/Normativa+Fiscal/Impuesto+sobre+Transmisiones+Patrimoniales+y+AJD/
Despensa, Luz, Patio, Zonas infantiles, Colegios
|
Consumo de Energía kWh/m2 Año |
Emisiones CO₂ Kg CO₂/m2 Año |
|
|
238.94
|
46.88
|
|
Plaza de la Libertad 12, 31004 Pamplona, Navarra, España