Extras
Luz, Colegios
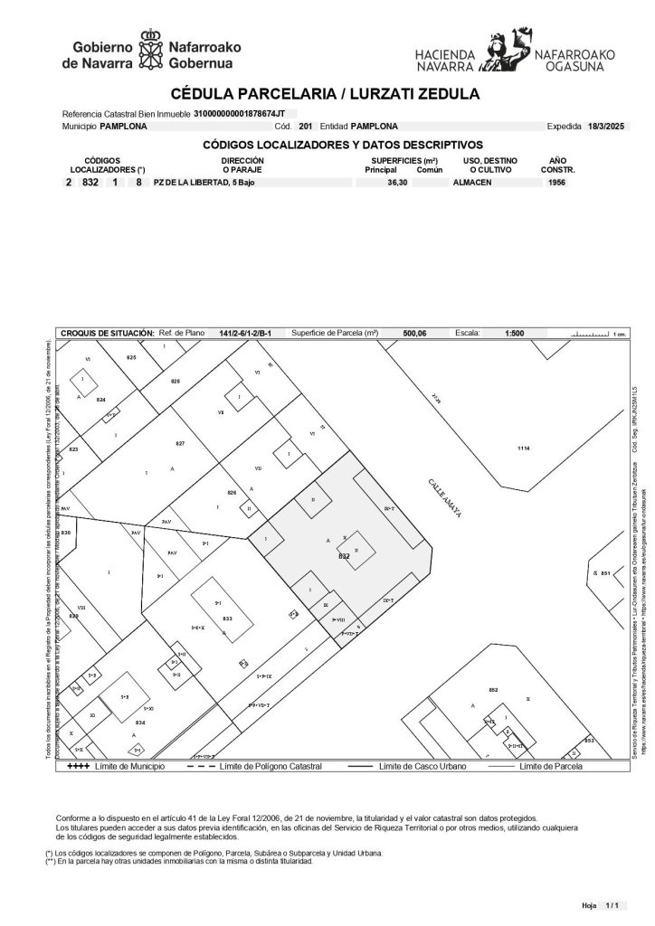
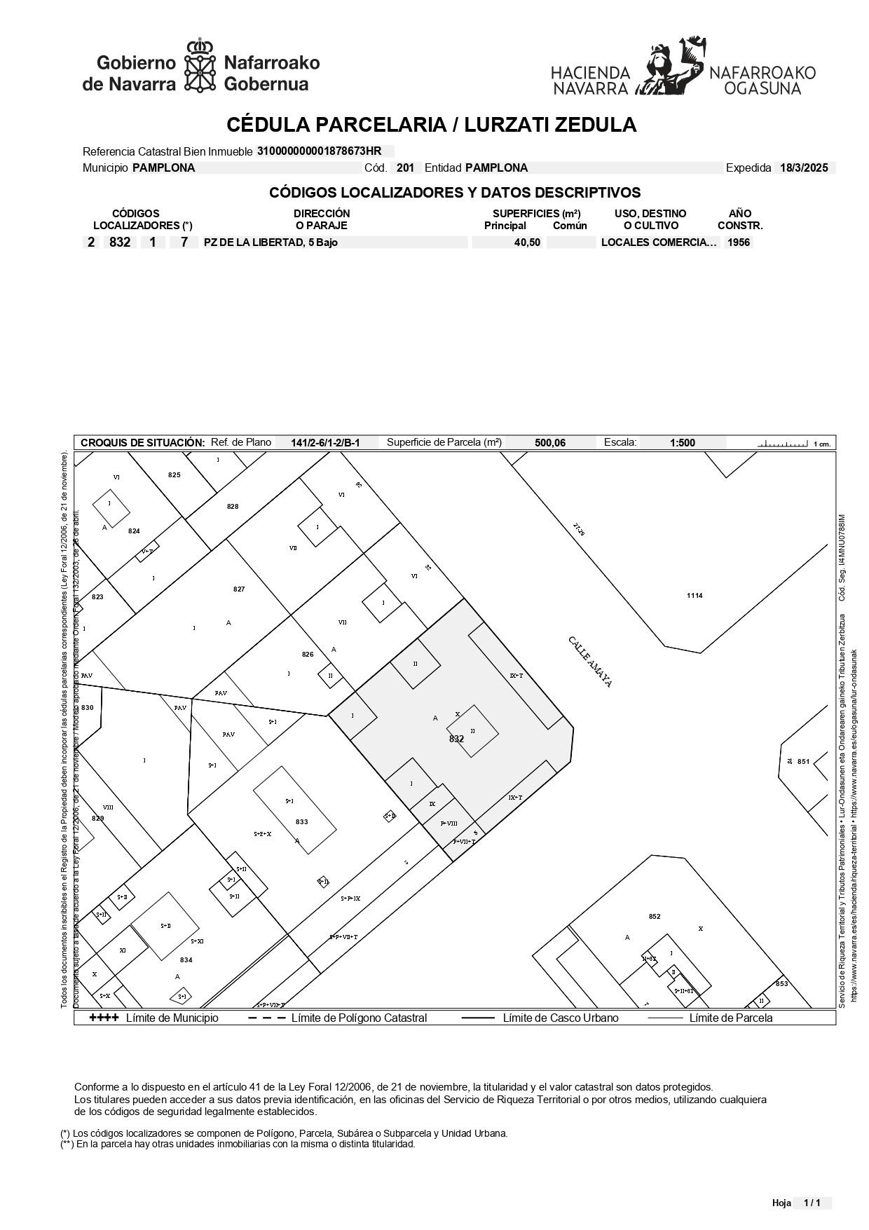
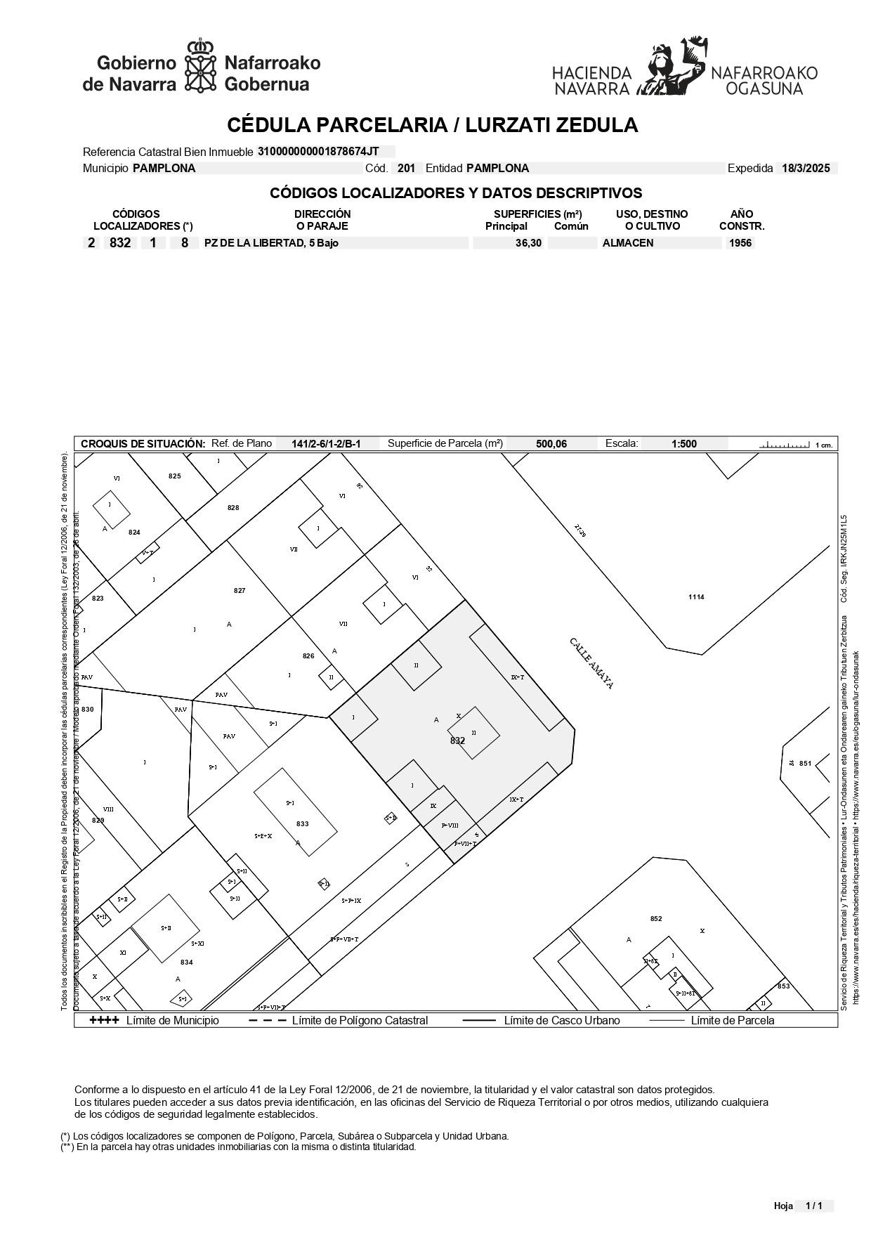
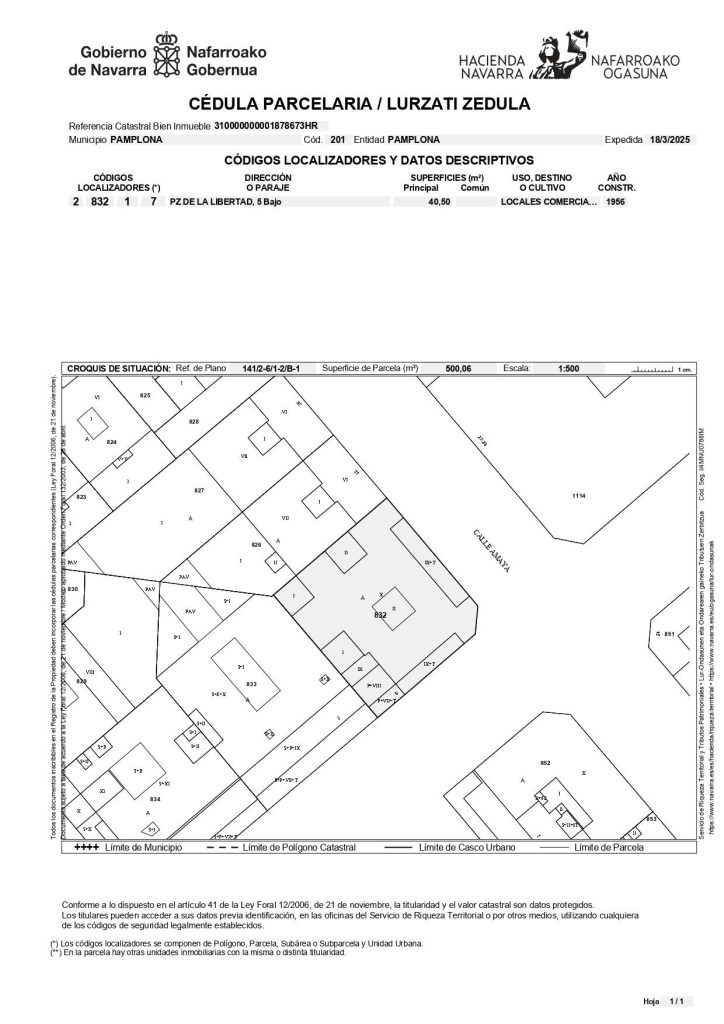
¡Excelente Oportunidad en la Mejor zona de Pamplona! Local Comercial Frente a la Escuela de Artes y Oficios
Descripción:
¡Atención emprendedores e inversores! Presentamos un local comercial con una ubicación inmejorable en una de las calles más prestigiosas de Pamplona, justo enfrente de la reconocida Escuela de Artes y Oficios.
Este local de 77 m² ofrece un lienzo en blanco para que desarrolles la actividad que siempre has soñado.
Distribución inteligente: Cuenta con una zona principal de 40 m², ideal para exposición y atención al público, conectada a un práctico almacén de 37 m² con aseo.
Ubicación estratégica: Su privilegiada situación garantiza una alta visibilidad y tránsito de personas, beneficiándose del flujo constante de estudiantes, profesionales y residentes de la zona.
Totalmente adaptable: El local está para reformar, lo que te brinda la libertad de diseñar y acondicionar el espacio según las necesidades específicas de tu negocio. ¡Crea el ambiente perfecto para tu marca!
Potencial ilimitado: Ya sea una boutique de moda, una galería de arte, una acogedora cafetería, una moderna oficina o cualquier otro tipo de actividad, este local te ofrece la base perfecta para triunfar.
Información Adicional:
Superficie total: 77 m² (40 m² zona principal + 37 m² almacén y aseo)
Ubicación: Calle Amaya, 38, frente a la Escuela de Artes y Oficios de Pamplona.
Estado: Para reformar.
¡No dejes pasar esta oportunidad única de establecer tu negocio en una gran ubicación de Pamplona!
➡ INFORMACIÓN LEGAL
▪ Información meramente orientativa, sin valor contractual.
▪ Superficies aproximadas, con carácter descriptivo.
▪ Es posible que algunas imágenes hayan sido modificadas con IA o estén directamente generadas por IA.
▪ El precio de venta anunciado no incluye los gastos e impuestos a cargo del comprador derivados de la compraventa (Notaría, Registro, ITP, AJD, gastos financieros u otros). Tampoco se incluye el mobiliario ni otros enseres, salvo indicación expresa.
A modo orientativo en Navarra:
▪ Notaría y Registro: 1-2%.
▪ ITP: tipo general 6%.
▪ AJD: aprox. 0,5-1%.
PRECIO FINAL COMPLETO ESTIMADO incluyendo impuestos y gastos de compraventa: 151.200€.
Más información oficial:
▪ https:// navarra.es/home_es/Gobierno+de+Navarra/Organigrama/Los+departamentos/Economia+y+Hacienda/Organigrama/Estructura+Organica/Hacienda/Informacion+Fiscal/Normativa+Fiscal/Impuesto+sobre+Transmisiones+Patrimoniales+y+AJD/
Luz, Colegios
|
Consumo de Energía kWh/m2 Año |
Emisiones CO₂ Kg CO₂/m2 Año |
|
Calle Amaya 38, 31004 Pamplona, Navarra, España