Extras
Armarios empotrados, Jardín, Electrodomésticos, Luminoso, Luz, Televisión, Cocina independiente, Centros comerciales, Zonas infantiles, Colegios
¿Buscas privacidad, metros exteriores y tecnología? Este ático de 2018 en la Calle Cataluña es una pieza exclusiva por altura y prestaciones en el corazón del Soto de Lezkairu.
El barrio de Lezkairu en Pamplona cuenta con un perfil socioeconómico de renta media-alta, y una estructura demográfica joven, con predominio de familias y población adulta en edad laboral. Es un barrio moderno y en expansión, planificado con criterios de sostenibilidad y espacios verdes, y dispone de una completa oferta de servicios públicos y privados, como centros educativos, comercio, instalaciones deportivas, zonas de ocio y equipamientos sociales.
LO MEJOR DE LA VIVIENDA:
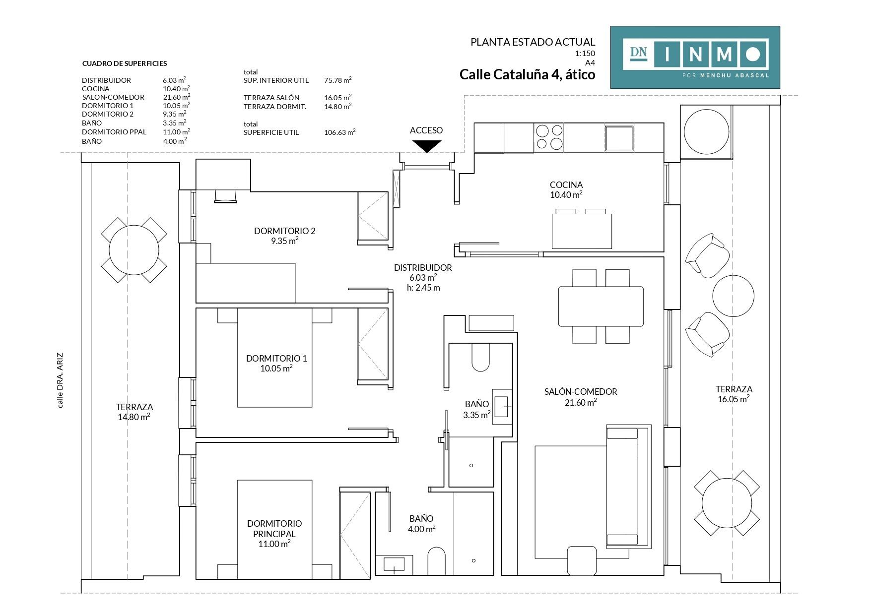
• 37 m² de Terrazas (Doble Orientación): Disfruta de dos terrazas cubiertas, una al Este (sol de mañana) y otra al Oeste (sol de tarde). Al estar protegidas por el alero, funcionan como porches privados utilizables los 365 días del año, sin importar el sol intenso o la lluvia.
• Máximo Confort: 6ª planta real (sin ruidos superiores) con calefacción por suelo radiante.
• Impecable: 3 dormitorios y 2 baños (uno en suite). Cocina totalmente equipada con acabados premium y estado de reestreno.
• Urbanización Privada: Recinto ajardinado exclusivo para los vecinos de los 6 portales del complejo.
GARAJE DEL FUTURO:
Incluye plaza de garaje amplia y de fácil acceso, ya equipada con punto de recarga para vehículo eléctrico.
➡ INFORMACIÓN LEGAL
▪ Información meramente orientativa, sin valor contractual.
▪ Superficies aproximadas, con carácter descriptivo.
▪ Es posible que algunas imágenes hayan sido modificadas con IA o estén directamente generadas por IA.
▪ En el precio de venta están incluidos los honorarios a cargo del comprador (3.000 euros, 21% de IVA incluido).
▪ El precio de venta anunciado no incluye los gastos e impuestos a cargo del comprador derivados de la compraventa (Notaría, Registro, ITP, AJD, gastos financieros u otros). Tampoco se incluye el mobiliario ni otros enseres, salvo indicación expresa.
A modo orientativo en Navarra:
▪ Notaría y Registro: 1-2%.
▪ ITP: tipo general 6% (con posibles bonificaciones).
▪ AJD: aprox. 0,5-1%.
PRECIO FINAL COMPLETO ESTIMADO incluyendo impuestos y gastos de compraventa: 597.240€.
Más información oficial:
▪ navarra.es/home_es/Temas/Vivienda/Ciudadanos/Compraventa/Antes+de+comprar+una+vivienda/Vivienda+usada/Gastos.htm
▪ https:// navarra.es/home_es/Gobierno+de+Navarra/Organigrama/Los+departamentos/Economia+y+Hacienda/Organigrama/Estructura+Organica/Hacienda/Informacion+Fiscal/Normativa+Fiscal/Impuesto+sobre+Transmisiones+Patrimoniales+y+AJD/
Armarios empotrados, Jardín, Electrodomésticos, Luminoso, Luz, Televisión, Cocina independiente, Centros comerciales, Zonas infantiles, Colegios
|
Consumo de Energía kWh/m2 Año |
Emisiones CO₂ Kg CO₂/m2 Año |
|
|
37.3
|
7.79
|
|
Calle Cataluña 2, 31006 Pamplona, Navarra, España
Utilizamos cookies propias y de terceros para analizar el uso del sitio web y mostrarte publicidad relacionada con tus preferencias sobre la base de un perfil elaborado a partir de tus hábitos de navegación (por ejemplo, páginas visitadas). Política de cookies.